Omschrijving
Cix fase 1 – in verkoop
De verkoop van Cix fase 1 verloopt voorspoedig. De eerste koopcontracten zijn getekend en steeds meer woningen vinden hun toekomstige bewoners. Het is prachtig om te zien hoeveel belangstelling er is voor wonen in deze groene, autovrije stadswijk. Droom jij ook van jouw plek in Cix? Je kunt je nog steeds inschrijven voor jouw favoriete bouwnummer(s). Je wordt dan automatisch op de reservelijst geplaatst. Indien een bouwnummer vrij komt, wordt deze opnieuw verloot onder de reservekandidaten. En wellicht vind jij dan ook jouw nieuwe thuis @Cix!
Wil jij op de hoogte blijven van de nieuwste ontwikkelingen in Cix? Schrijf je dan in voor de nieuwsbrief op de projectwebsite.
CIX – Hier woon je stads en leef je groen
Wonen in Merwede Utrecht, down-town en toch in het groen? Ontdek het woningaanbod in Cix via de interactieve woningzoeker op de projectwebsite. Hier vind je ook plattegronden, woonoppervlaktes, zonligging en de verkoopprijzen.
De 40 comfortabele stadsappartementen in de eerste fase van Cix vind je in pand F en pand H: 18 appartementen in pand F en 22 appartementen in pand H. Beide gebouwen liggen direct aan het levendige Bierbrouwersplein, de bruisende plek van de wijk, met straks horeca in de plint en gemeenschappelijke tuinen achter de blokken.
Pand F herken je aan het rode bakstenen gevelbeeld met ritmisch raamspel en zonnige balkons, en daarnaast een hoger bronskleurig volume met royale glaspartijen. Pand H is een rode bakstenen volume met diepe kozijnen en loggia’s vol groen. Beide bieden comfortabele stadswoningen van circa 47 tot 110 m², vrijwel allemaal met een eigen buitenruimte én toegang tot een gezamenlijk dakterras en allemaal met energielabel A++(+).
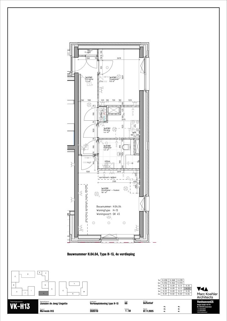
Bouwtype H-04
Licht en mooi 2-kamerappartement van 47 m² in Cix! Op de tweede, derde, vierde of vijfde verdieping van pand H vind je dit fijne appartement met 1 slaapkamer en een open keuken. Dankzij de tweezijdige oriëntatie geniet je de hele dag van licht. Het appartement ligt aan de straat De Dorser en met aan de achterkant zicht op de binnentuin.
Een nieuwe stadswijk in Utrecht Merwede, waar stedelijkheid en rust elkaar aanvullen. Je woont hier tussen park en plein, met ruimte om op te laden én midden in het leven te staan.
City is het kloppende hart van Cix. Een ensemble van dertien gebouwen rondom een collectieve binnentuin, elk met een eigen uitstraling, ritme en gezicht, en toch duidelijk familie van elkaar. City biedt 306 woningen, elk met zicht op het groen, het plein of de stad. De koopwoningen in City omvatten:
• 103 (betaalbare) koopwoningen: van compacte stadsappartementen tot royale hoekwoningen en unieke terraswoningen;
• Twee tot vier kamers met een oppervlakte van circa 47 tot 132 m2;
• Riante buitenruimtes tot wel 38 m2;
• Gebruik van de gezamenlijke binnentuin, een levendige plint vol horeca, winkels, werkplekken en een cultuurhuis. Kortom: Cix is een plek waar alles samenkomt.
Maar City is meer dan wonen. Het is leven in de volle breedte, zoals je in een stad verwacht. Aan de levendige plint van het blok vind je een supermarkt, een sportschool en een collectieve fietsenstalling, levendige horeca en (creatieve) werkplekken voor startende of groeiende ondernemers. Hier komt alles samen. Vanaf je balkon kijk je uit op het bruisende Bierbrouwersplein van Merwede, waar altijd iets gebeurt. En tegelijkertijd is de natuur nooit ver weg. City grenst namelijk aan het park, met bomen die hoger reiken dan sommige gebouwen.
Wat City uniek maakt binnen Merwede is de combinatie van energie en ademruimte. Je woont hier tussen mensen, tussen de locals, níet langs elkaar heen. Je groet je buren, drinkt een smoothie op het terras, deelt een tuin. Kinderen spelen veilig buiten, jij sport om de hoek. Het sociale karakter zit hier ingebakken in de architectuur. Zichtlijnen, overgangen tussen privé en openbaar en veel collectieve ruimtes waar spontane ontmoetingen ontstaan.
Architectonisch gezien biedt City een verrassing op elke hoek. Geen standaard gevels, maar een spel van vormen en materialen: van matzwarte volumes tot groengeglazuurde tegels, diepe neggen en glas dat het licht vrij spel geeft. Elk gebouw vertelt zijn eigen verhaal. Samen vormen ze een decor dat voelt als thuis. Dit is een stedelijk ensemble waar je je leven omheen bouwt. Welkom in City. Hier woon je in de stad, leef je gezond in het groen en voel je je verbonden en onderdeel van iets groters.
Zie we jou @ Cix?
Nooit meer fear of missing out. Want @Cix begint het leven pas echt. Hier zet je je stadse leven voort in een omgeving waar je groenere kant alle ruimte krijgt.
Cix is een mix van karakteristieke gebouwen in de nieuwe Utrechtse stadswijk Merwede. Samen vormen ze een kleine stad-in-een-stad, waar buurtbewoners elkaar kennen. Hier vind jij de fijne woning die je zoekt. Royaal of juist compact. Down town, en toch in het groen.
De Utrechtse binnenstad is vlakbij, maar voor goede koffie of een avond op het terras hoef je de wijk niet uit. Naast winkels, horeca en creatieve bedrijvigheid is er een markthal vól verse, lokale producten en een cultuurhuis. Cix is een plek om thuis te komen en te landen. Een plek waar je je balans vindt.
Cix is onderdeel van Merwede, een nieuwe, groene stadswijk langs het Utrechtse Merwedekanaal. Dit voormalig bedrijventerrein is hard op weg een gewilde woonbuurt te worden met meer dan 6.000 woningen. De opzet van Merwede is groen, duurzaam en sociaal. De wijk is geheel autoluw en vol weelderige stadsnatuur om van te genieten. Een fijn thuisoord voor iedereen die duurzaam, bewust en gezond wil leven.
Merwede
Wonen in een bruisende groene stadswijk midden in Utrecht, stel je voor! Fluitende vogels, onbezorgd spelende kinderen en jij geniet van de rust én de mensen om je heen. Met alle voorzieningen op loopafstand. Dit is jouw leven in Merwede.
Merwede wordt een unieke Utrechtse stadswijk. Met een brede mix van woningen en bewoners. Zo bouwen we aan een mooie stadswijk waar iedereen zich thuis voelt. Met hogere en lagere gebouwen, stoere afwisselende stadspanden. Volop groene ruimte voor ontmoeting en ontspanning. Wandel- en fietspaden zullen het straatbeeld domineren. Zonder auto’s, omringd met water en groen. Alles wat de stad Utrecht aantrekkelijk maakt, vind je hier heel dichtbij.
+ Lees de volledige omschrijving
Kenmerken
Overdracht
- Koopprijs
- € 340.000,-
- Status
- Verkocht onder voorbehoud
Bouw
- Soort
- Galerijflat
- Kenmerk
- Appartement
- Open portiek
- Nee
- Woonlaag
- 4
- Aantal woonlagen
- 1
- Objecttype
- Appartement
- Dak type
- Plat dak
Indeling
- Aantal kamers
- 2
- Aantal woonlagen
- 1
- Voorzieningen
- Mechanische ventilatie, TV kabel, Lift
Energie
- Isolatievormen
- Volledig geïsoleerd
- Energieklasse
- A++
- Energielabel einddatum
- 1 januari 2035
- CV ketel combiketel
- Nee
Buitenruimte
- Liggingen
- Aan rustige weg, In woonwijk
- Tuintypen
- Geen tuin
- Bereikbaar via achterom
- Nee
Bergruimte schuur
- Soort
- Inpandig
- Voorzieningen
- Voorzien van elektra
- Totaal aantal
- 1
+ Lees de volledige omschrijving







