Omschrijving
Ben je op zoek naar een sfeervolle en instapklare woning op een fijne locatie in Utrecht? Dan is Bollenhofsestraat 152 absoluut een bezichtiging waard!
Deze charmante woning combineert karakter met comfort en beschikt over een lichte woonkamer, meerdere slaapkamers en een knusse stadstuin. De woning is gelegen in de populaire wijk Wittevrouwen, op korte afstand van het Griftpark en het bruisende stadscentrum van Utrecht.
De ligging is ideaal. In de directe omgeving bevinden zich diverse winkels, supermarkten, horecagelegenheden en andere dagelijkse voorzieningen. Het Griftpark ligt op loopafstand en biedt volop mogelijkheden voor ontspanning. Daarnaast zijn ook de binnenstad, de Neude en het Janskerkhof eenvoudig bereikbaar. De bereikbaarheid is uitstekend, zowel met het openbaar vervoer als met de auto richting de A27 en A28.
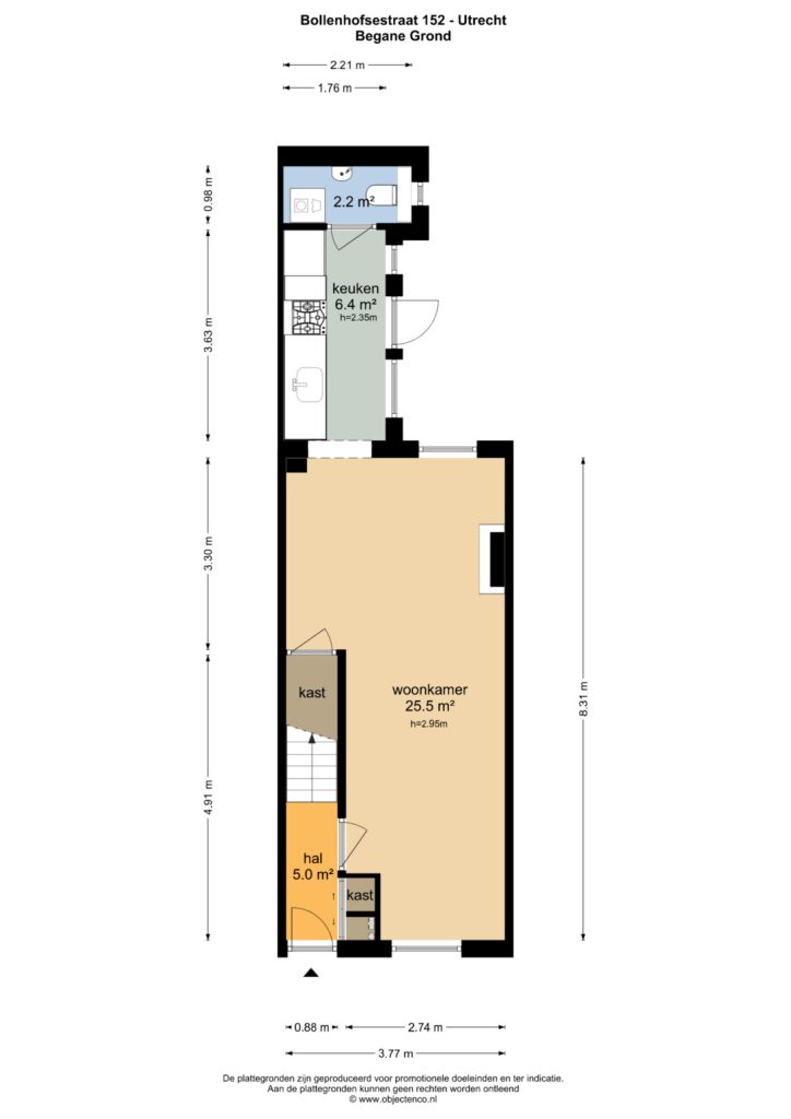
Begane grond:
Via de entree kom je binnen in de hal met toegang tot de trapopgang, trapkast en het toilet. De woonkamer is ruim en licht dankzij de grote raampartijen en heeft een prettige, open uitstraling. De houten vloer en lichte afwerking zorgen voor een warme en moderne sfeer.
Aan de achterzijde bevindt zich de keuken, uitgevoerd in een lichte kleurstelling en voorzien van diverse inbouwapparatuur. Vanuit de keuken is er toegang tot de knusse stadstuin, waar je in alle rust kunt genieten van het buitenleven.
Eerste verdieping:
Op de eerste verdieping bevinden zich twee slaapkamers. De slaapkamer aan de achterzijde is compact en ideaal te gebruiken als werk- of kinderkamer. De slaapkamer aan de voorzijde is ruimer van opzet en beschikt over prettig lichtinval.
Daarnaast bevindt zich op deze verdieping de badkamer, welke is voorzien van een ligbad, douche en wastafelmeubel. Ook is er een separate ruimte aanwezig die kan dienen als opbergruimte.
Tweede verdieping:
De tweede verdieping beschikt over nog twee slaapkamers en is dankzij de kapconstructie en dakramen verrassend licht. Deze verdieping biedt volop mogelijkheden voor gebruik als slaapkamers, werkruimte of hobbyruimte.
Via een vaste trap is tevens een vliering bereikbaar, ideaal voor extra bergruimte.
Samengevat:
Een sfeervolle en goed ingedeelde woning met meerdere slaapkamers en een fijne buitenruimte, gelegen op een gewilde locatie in Utrecht. Een ideale woning voor wie comfortabel wil wonen dichtbij het centrum.
Zie jij jezelf al wonen aan de Bollenhofsestraat 152?
Bijzonderheden:
*het pand is in 2019 gerenoveerd toen is ook de 2e etage opnieuw ingedeeld
*circa 90 m² woonoppervlakte;
*vier slaapkamers verdeeld over twee verdiepingen;
*platte dak dakkapel en platte dak uitbouw vervangen in 2025
*goot achterzijde recent vervangen;
*gelegen in de populaire wijk Wittevrouwen;
*nabij Griftpark en binnenstad;
*verkoper behoudt zich te allen tijde nadrukkelijk het recht van gunning voor;
*De koopovereenkomst wordt gesloten op basis van een NVM koopovereenkomst, waarin extra clausules kunnen worden
opgenomen (indien van toepassing), ouderdomsclausule, voorbehoud financiering, notariskosten. De tekst van de NVM
koopovereenkomst, alsmede de extra clausules, zijn op verzoek beschikbaar;
*Voor meer informatie over parkeerbeleid / vergunningen in deze omgeving verwijzen wij naar www.utrecht.nl/parkeren
*Alle moeite is genomen om de informatie in de aanmelding zo accuraat en actueel mogelijk weer te geven. Fouten zijn
echter nooit uit te sluiten. Vertrouw daarom niet alleen op deze informatie, maar controleer bij de aankoop van deze
woning de zaken die uw beslissing zouden kunnen beïnvloeden
*oplevering in overleg
Interesse in deze woning? Neem uw eigen NVM-aankoopmakelaar mee.
+ Lees de volledige omschrijving
Kenmerken
Overdracht
- Koopprijs
- € 649.000,- k.k.
- Status
- Onder bod
- Aanvaarding
- In overleg
Bouw
- Soort
- Eengezinswoning
- Type
- Tussenwoning
- Objecttype
- Woonhuis
- Bouwvorm
- Bestaande bouw
- In aanbouw
- Nee
- Huidig gebruik
- Woonruimte
- Huidige bestemming
- Woonruimte
- Permanente bewoning
- Ja
- Recreatiewoning
- Nee
- Bouwjaar
- 1893
- Dak type
- Mansardedak
- Dak materialen
- Pannen
Oppervlakten en inhoud
- Woonoppervlakte
- 90 m2
- Gebruiksoppervlakte woonkamer
- 26 m2
- Gebruiksoppervlakte overige functies
- 0 m2
- Buitenruimtes gebouwgebonden of vrijstaand
- 0 m2
- Oppervlakte externe bergruimte
- 0 m2
- Perceel oppervlakte
- 56 m2
- Inhoud
- 329 m3
Indeling
- Aantal kamers
- 5 (4 slaapkamers)
- Aantal badkamers
- 1
- Voorzieningen
- TV kabel
Energie
- Isolatievormen
- Dakisolatie, Vloerisolatie, Dubbelglas
- Energieklasse
- C
- Energielabel einddatum
- 11 maart 2036
Buitenruimte
- Liggingen
- Aan rustige weg, In woonwijk, Beschutte ligging
- Tuintypen
- Achtertuin
- Oppervlakte
- 9 m2
- Hoofdtuin
- Achtertuin
- Positie
- Noordoost
- Bereikbaar via achterom
- Nee
Parkeergelegenheid
- Parkeer faciliteiten
- Openbaar parkeren, Betaald parkeren
+ Lees de volledige omschrijving




