Omschrijving
Welkom aan de Papiermoerbeilaan 32: een moderne, energiezuinige en instapklare nieuwbouwwoning (2024) waar ruimte, comfort en luxe op hoog niveau samenkomen. Met maar liefst 6 kamers, waaronder 5 volwaardige slaapkamers, biedt deze woning alle ruimte voor het moderne gezinsleven, werken aan huis of het ontvangen van gasten.
Wat deze woning écht onderscheidt, is de uitzonderlijke mate van privacy en vrije ligging. Aan de achterzijde kijk je vrij weg over een straat, waardoor directe achterburen ontbreken. Aan de voorzijde zorgt de ligging aan een speeltuin eveneens voor vrij uitzicht zonder inkijk. Dit geeft de woning een opvallend open en ruimtelijk karakter, gecombineerd met een gevoel van rust dat zelden zo compleet wordt ervaren.
De woning is tot in detail afgewerkt met hoogwaardige materialen en een eigentijdse uitstraling. Dankzij de slimme indeling en de vele raampartijen profiteert het huis het hele jaar door van veel natuurlijk licht, zowel aan de voor- als achterzijde. In combinatie met de eigen garage en de sfeervolle zuidoostgerichte tuin is dit een woning die niet alleen praktisch is, maar ook een plek waar je iedere dag met plezier thuiskomt.
Daarnaast is de woning voorbereid op de toekomst: er zijn extra elektrische groepen en bekabeling aangelegd voor het eenvoudig installeren van een laadpunt voor een elektrische auto.
De locatie:
De woning is gelegen in de moderne en kindvriendelijke wijk Rijnvliet, een populaire en jonge woonomgeving in Utrecht. Rijnvliet staat bekend om zijn groene opzet, speelse indeling en fijne leefklimaat voor gezinnen.
In de directe omgeving vind je diverse voorzieningen zoals scholen, kinderopvang, winkels, sportfaciliteiten en openbaar vervoer. Daarnaast ligt zowel het bruisende centrum van Utrecht als Leidsche Rijn Centrum op korte afstand, waardoor je profiteert van een breed aanbod aan winkels, horeca en voorzieningen.
Ook de bereikbaarheid is uitstekend: uitvalswegen zijn snel te bereiken en met het openbaar vervoer ben je binnen korte tijd in het hart van de stad.
Een ideale locatie voor wie rustig en ruim wil wonen, met alle stedelijke voorzieningen binnen handbereik.
INDELING
Begane grond
Via de entree kom je binnen in een verzorgde hal met modern toilet en trapopgang. Vanuit hier stap je de royale leefruimte binnen, waar direct de hoogwaardige afwerking en het moderne karakter van de woning opvallen.
De woonkamer aan de achterzijde is heerlijk licht dankzij de brede pui met openslaande deuren naar de tuin. Deze zorgen voor een fijne verbinding tussen binnen en buiten en maken de ruimte perfect voor zowel ontspannen avonden als gezellige momenten met familie en vrienden. De strakke wanden, warme visgraatvloer en rustige kleurstelling geven de ruimte een luxe en tijdloze uitstraling.
Aan de voorzijde bevindt zich de moderne leefkeuken, uitgevoerd met een stijlvol kookeiland en strakke, greeploze kasten. De keuken is voorzien van hoogwaardige inbouwapparatuur en biedt volop werk- en opbergruimte. Het kookeiland vormt het hart van de ruimte en nodigt uit tot samen koken en borrelen. Grote raampartijen zorgen ook hier voor veel natuurlijk licht en toegang tot de voortuin.
Tussen de keuken en de woonkamer ligt de eetkamer, een fijne plek voor een royale eettafel. De ruimte voelt open en ruim aan en staat in directe verbinding met zowel de keuken als de woonkamer, waardoor een echte leefruimte ontstaat.
De woning beschikt daarnaast over een ruime garage (ca. 18,3 m²) met elektrisch bedienbare garagedeur, die zowel via een afstandsbediening als via een app te bedienen is. Ideaal voor het parkeren van een auto, fietsen of het creëren van extra bergruimte.
Eerste verdieping
De overloop biedt toegang tot drie comfortabele en goed ingedeelde slaapkamers. Dankzij de grote raampartijen zijn alle kamers heerlijk licht en voelen ze ruim aan. De grootste slaapkamer is perfect als royale master bedroom, terwijl de overige kamers zich uitstekend lenen als kinder-, werk- of logeerkamer.De moderne badkamer is stijlvol afgewerkt en voorzien van een ligbad, ruime inloopdouche, wastafelmeubel en toilet. Daarnaast beschikt de badkamer over een designradiator en een moderne, aanraakgevoelige spiegel, wat bijdraagt aan zowel het comfort als een energiezuinig gebruik.
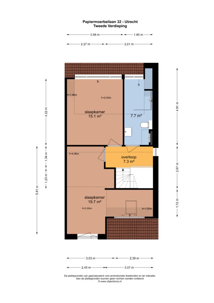
Tweede verdieping
De tweede verdieping biedt nog eens twee ruime en sfeervolle slaapkamers. Dankzij de kapconstructie en speelse indeling hebben deze kamers een uniek karakter, met voldoende ruimte voor zowel slapen als werken of ontspannen.
Aan de voorzijde bevindt zich bovendien een hoge Franse deur met een klein balkon, een bijzonder detail dat slechts bij enkele woningen in de straat voorkomt en de woning een extra karakteristieke uitstraling geeft.
Daarnaast beschikt deze verdieping over een tweede moderne badkamer, voorzien van een inloopdouche, wastafel en toilet. Extra comfort wordt geboden door een elektronisch bidettoilet met verwarmde zitting. Verder is de badkamer uitgerust met een slimme designradiator die via wifi en een app kan worden bediend, wat bijdraagt aan zowel het comfort als een energiezuinig gebruik.
De woning is uitgerust met diverse moderne voorzieningen die het wooncomfort verder verhogen. Zo zijn op alle verdiepingen buitenzonweringen aanwezig (met uitzondering van het voorraam op de tweede verdieping). De zonwering in de woonkamer is elektrisch bedienbaar en ook de zonweringen bij de dakkapellen functioneren elektrisch via een afstandsbediening. Hierdoor blijft het binnenklimaat aangenaam en comfortabel, ook tijdens warme zomerdagen.
Bijzonderheden:
– Bouwjaar 2024 – volledig nieuw en instapklaar;
– Woonoppervlakte 167 m², verdeeld over 3 volwaardige woonlagen;
– 6 kamers, waarvan 5 ruime slaapkamers;
– 2 moderne badkamers, 3 toiletten;
– Eigen garage (ca. 18,3 m²) met elektrisch bedienbare garagedeur;
– extra elektrische groepen en bekabeling aangelegd voor het installeren van een laadpunt voor een elektrische auto;
– Energielabel A+++;
– Voorzien van 9 zonnepanelen;
– Tuin op het zuidoosten;
– Verkoper behoudt zich te allen tijde nadrukkelijk het recht van gunning voor;
– De koopovereenkomst wordt gesloten op basis van een NVM koopovereenkomst, waarin extra clausules kunnen worden opgenomen, zoals een ouderdomsclausule en voorbehoud financiering. De tekst van de NVM koopovereenkomst en eventuele aanvullende clausules zijn op verzoek beschikbaar;
– Voor meer informatie over parkeerbeleid en vergunningen in deze omgeving verwijzen wij naar [www.utrecht.nl/parkeren](http://www.utrecht.nl/parkeren);
– Alle moeite is genomen om de informatie in deze aanmelding zo accuraat en actueel mogelijk weer te geven. Fouten zijn echter nooit uit te sluiten. Wij adviseren u bij aankoop de voor uw beslissing relevante zaken zelfstandig te controleren;
– Indien u de woning niet zelf gaat bewonen, verwijzen wij u naar de regeling van de gemeente Utrecht;
– Oplevering in overleg.
+ Lees de volledige omschrijving
Kenmerken
Overdracht
- Koopprijs
- € 1.039.000,- k.k.
- Status
- Beschikbaar
- Aanvaarding
- In overleg
Bouw
- Soort
- Eengezinswoning
- Type
- Geschakelde twee onder één kapwoning
- Objecttype
- Woonhuis
- Bouwvorm
- Bestaande bouw
- In aanbouw
- Nee
- Huidig gebruik
- Woonruimte
- Huidige bestemming
- Woonruimte
- Permanente bewoning
- Ja
- Recreatiewoning
- Nee
- Bouwjaar
- 2024
- Dak type
- Zadeldak
- Dak materialen
- Pannen
Oppervlakten en inhoud
- Woonoppervlakte
- 167 m2
- Gebruiksoppervlakte woonkamer
- 41 m2
- Gebruiksoppervlakte overige functies
- 18 m2
- Buitenruimtes gebouwgebonden of vrijstaand
- 0 m2
- Oppervlakte externe bergruimte
- 0 m2
- Perceel oppervlakte
- 245 m2
- Inhoud
- 690 m3
Indeling
- Aantal kamers
- 6 (5 slaapkamers)
- Aantal badkamers
- 2
- Voorzieningen
- Mechanische ventilatie, Dakraam, Glasvezel kabel, Zonnepanelen, Natuurlijke ventilatie
Energie
- Isolatievormen
- Dakisolatie, Muurisolatie, Vloerisolatie, Volledig geïsoleerd
- Energieklasse
- A+++
- Energielabel einddatum
- 18 juni 2034
Buitenruimte
- Liggingen
- Aan rustige weg, In woonwijk
- Tuintypen
- Achtertuin
- Oppervlakte
- 0 m2
- Hoofdtuin
- Achtertuin
- Positie
- Zuidoost
- Bereikbaar via achterom
- Ja
Parkeergelegenheid
- Parkeer faciliteiten
- Openbaar parkeren, Op eigen terrein
+ Lees de volledige omschrijving



